Less is more
Jan 26,2024 | SEEYE
Architectural Overview:
Architectural design: Ludwig Mies van der Rohe
Location: Plano, Illinois, USA, about 58 miles southwest of Chicago, near the Fox River.
Designed: 1945
Built: 1951
Building area: 1,500 square feet (140㎡)

Origins:
In late 1945, Mies, who had yet to make a name for himself,
met Edith Farnsworth, a 42-year-old Chicago physician.
She presented Mies with an opportunity to realize his
architectural vision —— a one-person weekend house in a beautiful setting.
Like the German Pavilion of 1929, it was exactly the kind of building that Mies had dreamed of,
with virtually no functional constraints that would allow him free rein.
during which time Mies and Dr. Farnsworth had a violent confrontation.

The Farnsworth home is located on the flood-prone Fox River, and on the 60-acre site,
Mies did not choose to place the house on the north side of the site on the high side of the road, he chose the side of the river,
and this way to face the nature, Philip Johnson bluntly said that it is "Safe Danger".
Mies, on the other hand, said,
"We should try to bring nature, the house and the man into a more complete unity."
He chose the river because he wanted the vacation home to have a more direct dialogue with its natural surroundings.

Mies intended to make the house look as light as possible on the ground,
so he raised it to about 160 centimeters above the ground.
The steel columns became the only point of contact with the ground,
and because of this the landscape was able to extend continuously through the house.
To achieve this, the window panes also provide structural support for the floor slabs.

The home utilizes a simplified version of Hinkle's Circular View design.
Here, furniture and rooms are arranged in such a way that they do not obstruct the view beyond the four glass walls,
Any angle allows the homeowner to enjoy the view through the clear glass walls.
The interior layout places the most functionally private sleeping area at the east end.
Considering that all four elevations of the home are permeable glass,
the home seems to have been intentionally presented as exposed from the outset.
This exposure contradicts the traditional home's ethos of domesticity and privacy,
as well as the cumbersome complexity of traditional function.
The so-called home is no longer seen as a concrete functional requirement, but as an abstract idea.

In this regard, Mies says,
"Nature should have its own character.
We can't interfere with it with the colors and interiors of the house."
In order to achieve a high degree of uniformity, Mies did not intend to install curtains,
However, due to the controversy over privacy, some curtains were installed.

The Farnsworth House is a miniature model of Universal Space.
The kitchen, two bathrooms, fireplace, and mechanical room were centralized as the core of the house,
a space and arrangement that Mies believed best suited the industrial era.

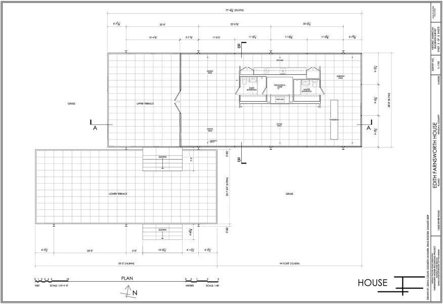
△Residential Floor Plans

△Residential Section


Floor-to-ceiling expanses of glass reveal the surrounding nature unobtrusively inside the building,
where the atmosphere changes with the time of day and the seasons, and where nature is part of the home.

Mies believed that the nature seen through the glass of the Farnsworth house was more meaningful than what could be seen outdoors,
and that by framing the openness of the view, nature became part of the interior.


An unpretentious home can sometimes hold the whole world.

Mies believed that the surrounding dense woods and vegetation would provide the necessary shade and privacy for a glass home.



Postscript - Flood violations
Although the building sits 5 feet 3 inches off the ground, it is still subject to devastating flooding.

In 1954, the river level rose to 1.83 meters, exceeding the highest level in a hundred years,
allowing floodwaters to pour into the residence.
However Mies was not able to predict the rise in river runoff due to the growth of the Chicago area,
and he did not anticipate that the residence would experience more flood damage.
From the results of the present investigation,
it appears that the interior of the home has been flooded six times since 1954.
The frequency of flooding in this home has become more frequent,
as it was in 1996, 1997, and recently in 2008.
Another flood experienced by the Farnsworth home in 2018,
Images are taken from the internet and are copyrighted to the original author or source organization.